close

研究・医療・食品現場の身近なサポーター

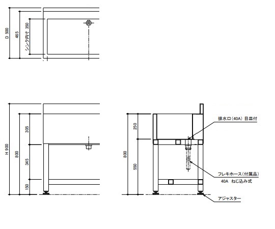
PVC流し台 蛇口無し AllP-600

商品コード:
3-398-04
メーカー希望小売価格
136,000円 (税込10% 149,600円)
販売価格
118,320 円 (税込10% 130,152 円)
送料別
11台 (11台あたり118,320円(税込10% 130,152円))

0~1営業日以内に発送予定。

JANコード:
4589638248382
製品番号:
AllP-600
関連カテゴリ:
研究用品・設備 > 4.実験室設備 > 18.実験台
●オールPVC製ですので、酸性薬品処理をした部品の洗浄等にも使用できます。●仕様:蛇口無し●サイズ(mm):600×500×900●重量(kg):約16●架台部:PVC角パイプ構造(アジャスター付き)●排水ホース:内径φ40mm×フレキホース1.5m●シンク寸法:520×350×250mm●付属:目皿付(PVC)