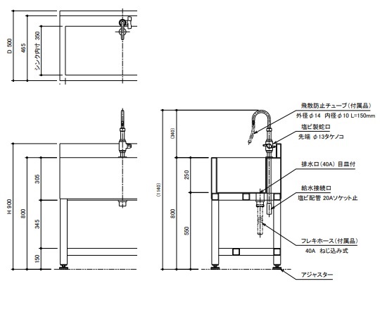
●オールPVC製ですので、酸性薬品処理をした部品の洗浄等にも使用できます。●水栓先端には水飛散防止用チューブが付属しています。●グースネックは360°回転します。●蛇口はメタルフリーです。●仕様:蛇口付き●サイズ(mm):900×500×900●重量(kg):約24●架台部:PVC角パイプ構造(アジャスター付き)●排水ホース:内径φ40mm×フレキホース1.5m●蛇口:PVC(接続口径/VP20A(呼び径))●シンク寸法:820×350×250mm●蛇口部分:外径/φ10mm、内径/φ7mm●飛散防止用チューブサイズ:外径φ14×内径φ10mm(長さ/150mm)●蛇口高さ:340mm●付属:目皿付(PVC)





![おむつ交換台[コンパクト] 550×800×900mm SOK](/upload/save_image/10_image/08590001.jpg)




